公司動態
點擊下載:不銹鋼水箱圖集 12S101 PDF格式

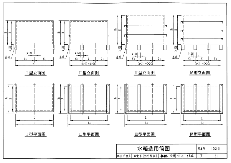
12S101不銹鋼水箱圖集(選用簡圖)

12S101不銹鋼水箱圖集(選用表1)

12S101不銹鋼水箱圖集(選用表)

12S101不銹鋼水箱圖集(組裝圖)

不銹鋼水箱圖集 12S101 (外形圖):

不銹鋼水箱圖集 12S101 (選用表一):

不銹鋼水箱圖集 12S101 (標準板):

不銹鋼水箱圖集 12S101 (基礎圖):

不銹鋼水箱圖集 12S101 (選用表二):

不銹鋼水箱內人梯圖集:

不銹鋼水箱外人梯圖集:

不銹鋼水箱人孔圖集:

不銹鋼水箱配管接頭安裝圖集:

不銹鋼水箱溢流管透氣管安裝圖集:

不銹鋼水箱玻璃管液位計安裝圖集:

不銹鋼水箱浮球閥安裝圖集:


微信服務號
鄂公網安備 42011202000782號